EMERGENCY REAL ESTATE & PERSONAL PROPERTY AUCTION
Oct 14
4pmTerms & Conditions
Legacy Estate Sales and Auction Group
Description & Details
EMERGENCY REAL ESTATE & PERSONAL PROPERTY AUCTION
Tuesday, October 14th 4PM
25909 E. 203rd Street, Pleasant Hill, MO 64080
Directions: 7 Highway South on E. 203rd Street, West on E. 203rd Street to Address. Watch for Signs!
EMERGENCY LAST MINUTE AUCTION! TAKE ADVANTAGE OF THIS SITUATION, BRING YOUR TRUCKS AND TRAILERS AS EVERYTHING MUST GO!
Real Estate | Offered at 6:30PM Sharp!
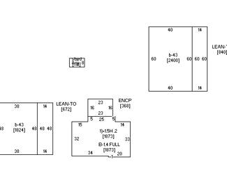
HUGE opportunity abounds at this 15 acre property! 1 ½ story true ranch home w/ 5 bedrooms & 3 ½ baths. The interior features a main level master suite w/ on-suite bath, main level laundry, newer sunroom, and a large family room w/ built-ins & brick fireplace. Full, partially finished basement w/ storm shelter leaves ample room for future expansion. The detached 40x60 metal shop building w/ lean-to has a large shop area, separate electric, concrete floors and complete mother-in-law quarters w/ full kitchen, bedrooms & bath. Detached 38x48 metal horse barn w/ lean-to. An additional garden shed is also on the property. Partially fenced property w/ mature shade trees. Property does need extensive work but there is also tremendous potential! Convenient location, right off of 7 Highway. Top rated Pleasant Hill R-3 school district. Do not miss this opportunity!
Fast Facts:
-
15 Acre Property
-
House Built in 1975
-
1 ½ Story True Ranch
-
House is 3,184 Square Foot
-
5 Bedroom | 3 ½ Bath
-
Main Floor Master Bedroom Suite w/ On-Suite Bathroom
-
Main Floor Laundry
-
Full, Partially Finished Basement w/ Storm Shelter
-
Detached 40x60 Metal Building w/ Lean-To, Built in 1994, Separate Electric, Concrete Floors, Complete Mother-in-Law Quarters w/ Full Kitchen, Bedrooms & Bath, Large Shop Area
-
Detached 38x48 Metal Horse Barn w/ Lean-To, Built in 1993
-
Garden Shed, Built in 1975, 112 Square Foot
-
Zoned Residential Agriculture
-
Grade 3 Missouri Soil w/ 9,352.50 CSR Points
-
Convenient Location Right off of 7 Highway
-
Pleasant Hill R-3 School District
Personal Property | Starts Selling Immediately at 4PM!
HOUSE IS COMPLETELY LOADED FULL! MANY ROOMS ARE PACKED FROM FLOOR TO CEILING WITH UNOPENED, MYSTERY BOXES, COME AND SEE WHAT WE UNCOVER! TONS OF BRAND NEW QVC MERCHANDISE!
40X60 SHOP BUILDING IS PACKED FULL AND WAS NOT ABLE TO ACCESS AT THE TIME OF LISTING, EXPECT MANY SURPRISES!
Antique, Vintage & Modern Furniture
Lots of assorted end & side tables; MCM vinyl bar & swivel barstool set; several vintage drafting stools; 1920’s antique chest of drawers; oak child’s furniture; MCM brass spider floor lamp; antique short walnut buffet-ornate; large cherry lighted curio cabinet; antique quarter-sawn oak 3-drawer dresser w/ mirror; antique oak rocking chair; oak jewelry armoire cabinet; antique floor radio; MCM blonde chest of drawers; 1940’s pine chest of drawers; brass baker’s rack; several dining table & chairs sets; antique walnut single drawer desk; antique upright piano; oak china cabinet; entertainment centers; bed frames; & more!
MASSIVE AMOUNT OF JEWELRY! SMALL AMOUNT OF GOLD, TONS OF NEW DESIGNER STERLING SILVER JEWELRY, MANY W/ GEMSTONES, LOOSE GEMSTONES, HUGE AMOUNT OF COSTUME JEWELRY! LOTS OF JEWELRY MAKING SUPPLIES & EQUIPMENT! SEVERAL .999 FINE SILVER CASINO ROUNDS!
Special Interest Items
“Heavy Barrel" video arcade game; 1920’s “Buckeye” slot machine w/ custom oak stand w/ brass claw feet; “Gay 90’s” video poker game
LARGE AMOUNT OF NEW WITH TAGS, COACH & VERA BRADLEY PURSES!
Collectibles
Vintage McDonald's silk restaurant banner-huge; sizable Disney Mickey Mouse collection; vintage toys; large Jack Daniel’s Whiskey wooden sign; several retro black velvet paintings; vintage stereo equipment; cast iron skillets-Martin, Lodge, etc.; whiskey decanters; retro barware; Hamilton Beach malt maker; beer steins; shot glass collection; hand-painted china; gun related items; ammo; knives; old books; vintage Tupperware; elephant collection; art glass; Budweiser pool cue; vintage pressed steel trucks; large set of vintage Corning Ware dishes; crystal; glassware; china; pottery; knick-knacks; vintage Pyrex; Fire King; lots of Disney glasses & mugs; lots of Disney snow globes; Disney Jim Shore figurines; pink depression glass; vintage Minolta camera; fur coats; lots of vintage clothing; antique scale; 1940’s ladies bicycle; vintage K.C. Chiefs jackets; vintage horse wall tapestry; vintage Budweiser bar signs; vinyl records; vintage Mickey Mouse Christmas blow mold; lots of NIB perfumes & colognes; silverplate tea set; pewter covered elephant trinket boxes; Mickey Mouse cookie jars; & much more!
Household
HUGE amount of NIB items & housewares; TONS of NIB kitchen wares; toys; totes; lots of Christmas & holiday decor; framed wall art; canning jars; baskets; work-out equipment; pool table & accessories; ping pong table; puzzles; electronics; pressure cookers; commercial soda machine; tool boxes full of tools; some scrap metal; (2) diamond plate truck bed toolboxes; lots of clothing-many new w/ tags; metal shop cabinets; several gun racks; Pyrex; Corning Ware; Corelle; NIB beverage cooler stands; like new large Frigidaire upright freezer; NIB catering equipment; KitchenAid stand mixer & accessories; Le Creuset enamel on cast iron dutch oven; computer equipment; office supplies; stainless steel flatware set in wooden chest; hunting clothing; clothing racks; NIB cosmetics; luggage; wrapping paper-lots; linens; bedding; lots of sewing & crafting items; commercial Bunn coffee maker; Sunbeam Mixmaster stand mixer; folding tables; sewing machines; tons of miscellaneous; home decor; household goods; many box lots; & tons more!
Legacy Auction Group & Realty
One Call Sells it All!
816.820.3313 | AuctionsKC.com
Sold@AuctionsKC.com



































































































































Thank you for using EstateSales.NET. You're the best!